ЦентрДом Харьковский портал по недвижимости
База недвижимости без посредников
Короткая ссылка - estkh.com
|
|
У Вас 0 сообщения |
Недвижимость в Харькове -> Аренда коммерческих объектов
Характеристики объекта :
Тип объявл. : |
Сдам в аренду |
Тип объекта : |
Офис |
Дата разм. : |
2025-09-05 01:07:24 |
Дата акт. : |
2026-04-01 19:02:54 |
Нас. пункт : |
Харьков |
Район : |
Южный вокзал |
Улица : |
Славянская ул. |
Этаж : |
1 |
Этажность : |
1 |
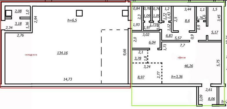
Общая пл. : |
101.1 кв.м. |
Пл. участка : |
0 |
Цена : |
15 165 UAH |
Качество : |
|
Ссылка : |
Текст объявления :
Здається в оренду офісне приміщення площею 101.1 м 2 на першому поверсі. Дуже зручна локація лише 2 хвилини пішки до метро Вокзальна, поруч зупинки транспорту, магазини, кафе, пошта. Це дозволить вашим співробітникам швидко діставатися на роботу, а клієнтам легко вас знаходити.
Приміщення підходить для IT компанії, кол центру, навчального або сервісного центру чи класичного офісу.
Важлива перевага: за стіною розташоване велике складське приміщення 134.16 м 2 яке можна орендувати додатково. Це ідеальний варіант для компаній, яким потрібні одночасно робочі кабінети та місце для зберігання товарів чи обладнання, наприклад інтернет магазин, дистрибютор, сервісна компанія.
Основні характеристики:
площа 101.1 м 2, кабінетне планування
опалення конвекторами економно та ефективно
всі комунікації підключені вода, світло, лічильники
є кондиціонери для комфорту влітку
обладнана міні кухня з водонагрівачем
система протипожежної безпеки та вентиляції
офіс готовий до роботи, зручне планування
Ціна 150 грн/кв. м + комунальні
Офіс стане чудовим вибором для компанії, якій важливе поєднання зручного розташування, готової інфраструктури та комфортних умов для роботи.
Телефонуйте, домовимося про перегляд. Без комісії
Видео :
Видео отсутствует!
Карта :
Метка на карте отсутствует!
Комментарии :
Быстрый переход
Смотреть объявления
Разместить объявления
Продажа недвижимости :